Beschrijving
Onze appartementen combineren moderne uitstraling met wooncomfort en
duurzaamheid. Ze zijn vrijwel geheel van hout gebouwd met
gevelafwerkingen van natuurlijke materialen. Zo ontstaat een
karakteristieke woning, waarbij elegantie, warmte en eenvoud samen
komen. Door toepassing van warmtepompen en zonnepanelen is aardgas
overbodig.
Bij elk project besteden we specifiek aandacht aan ontwerp en design,
waarbij er meerdere gebouwconfiguraties in verschillende
samenstellingen mogelijk zijn. Zo krijgt elk woningblok een unieke
uitstraling.
Onze woningen zijn compleet zelfvoorzienend en demontabel. Ze bestaan
uit volledig recyclebaar materiaal, zijn fossielvrij en eenvoudig te
verplaatsen. Deze innovatieve manier van bouwen is toekomstgericht:
“een woning die is gemaakt om door te geven”. De woningen zijn
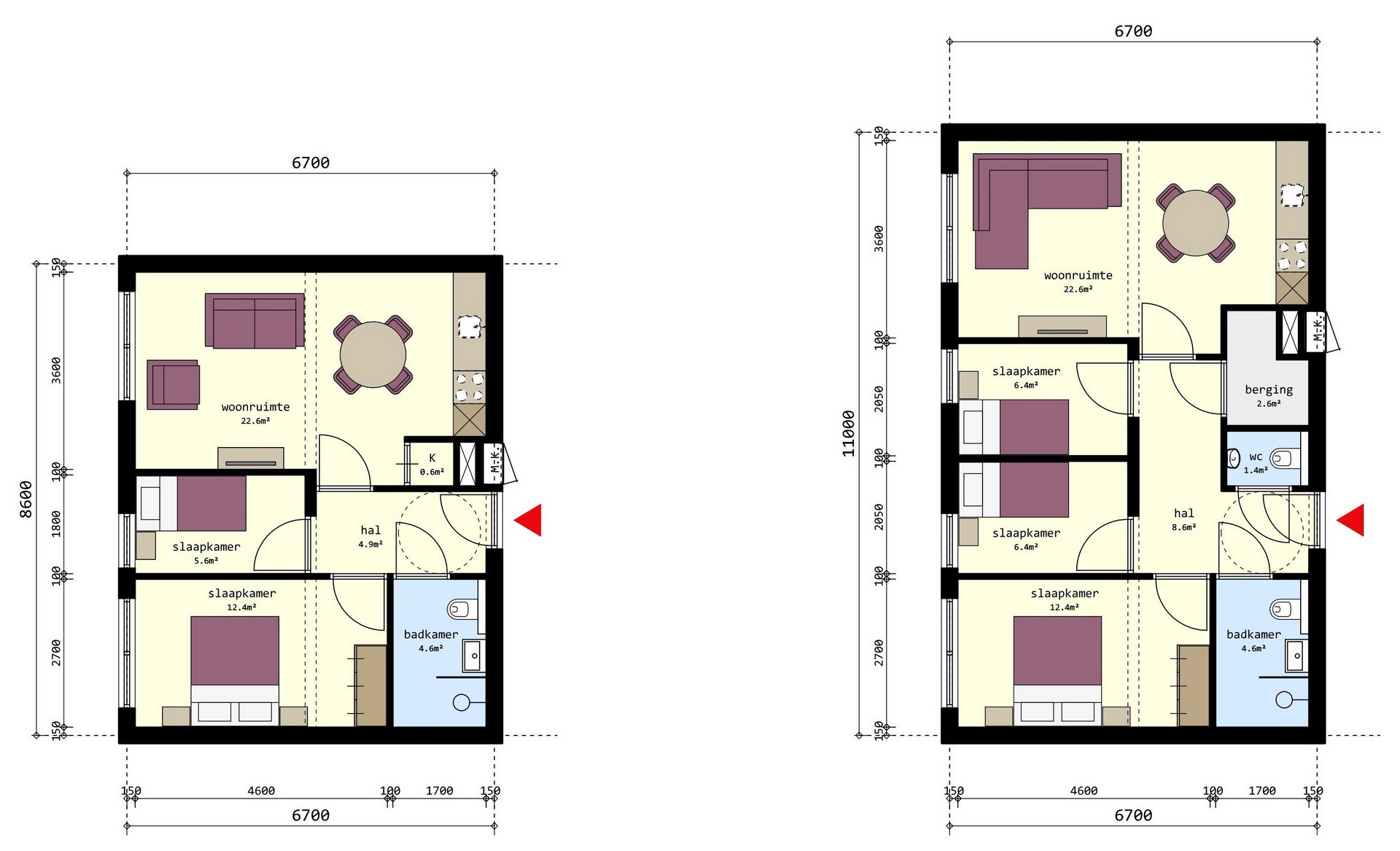
voorzien van een woonkamer met open keuken, meerdere slaapkamers,
badkamer, toilet en technische ruimte en beschikken over een eigen
bergruimte. Ze bieden een warme, natuurlijke uitstraling in harmonie
de bestaande omgeving. Kortom, een plek waar bewoners zich thuis
voelen en comfortabel kunnen wonen.
